Die KÜHNE-IDEAL® Regenwasser-Sammelanlagen sind modular aufgebaute Systeme aus robusten Betonfertigteilen nach DIN 4034/2. Sie ermöglichen eine effiziente Sammlung, Filterung und Speicherung von Regenwasser und eignen sich sowohl für die Gartenbewässerung als auch für Anwendungen mit Versickerung oder Retention.
Durch den modularen Aufbau lassen sich die Anlagen flexibel an unterschiedliche Grundstücksgrößen und Anforderungen anpassen. So entsteht eine nachhaltige Lösung zur Regenwassernutzung und Regenwasserbewirtschaftung im privaten, gewerblichen und kommunalen Bereich.
Sortiment der Regenwasser-Sammelanlagen
Unser Sortiment umfasst verschiedene Lösungen und Komponenten für die Regenwassernutzung:
• Laub- und Sandfang mit Gartenfilter XL im Schacht,
• Anlagen in Schachtringbauweise,
• Anlagen in Monolithbauweise,
• Regenwassertank aus Kunststoff Carat,
• Regenwasserfilter,
• Regenwasser-Sammelanlagen intus Compact,
• Gartenfilter XL im Schacht „FixL“,
• Filterplatte Typ A für monolithische Schächte,
• Filter im Schacht „FimS“.
Alle Systeme sind auf eine zuverlässige Regenwasserfilterung, hohe Langlebigkeit und einfache Integration in bestehende Entwässerungssysteme ausgelegt.
Laub- und Sandfang mit Gartenfilter XL im Schacht

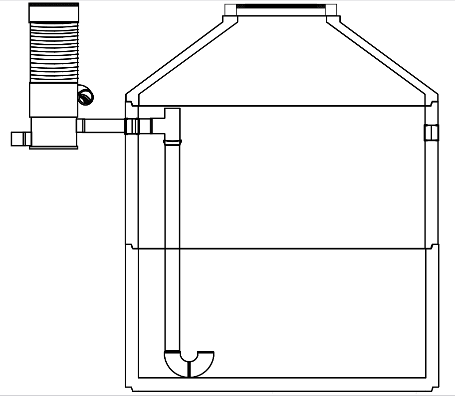
Ein Laub- und Sandfang mit Gartenfilter XL im Schacht vom Betonwerk Kühne ist ein rundes Beton-Schachtfertigteil nach DIN 4034/2 zur Reinigung von Regenwasser. Er dient als Vorfilter für Gartenbewässerungsanlagen. Regenwasser fließt ein, Feststoffe (Laub/Sand) trennen sich im eingebauten Gartenfilter XL und das gefilterte Wasser gelangt zum Speicher. Ab einer Dachfläche von 1400-2700 m² werden 2 Filter in einem Schacht D=2000 mm eingebaut.
Bestehend aus:
• 1 Laub- und Sandfang DN 1000/950 mm, Ein- und Auslauf,
• Gartenfilter XL,
• Schachthals/Konus 1000/625/600 mm.

Regenwasser-Sammelschacht aus Schachtringen

Unser Regenwasser-Sammelschacht aus Beton-Schachtringen dient zur Sammlung, Zwischenspeicherung und Ableitung von Regenwasser. Er wird aus mehreren übereinander gesetzten Schachtringen aufgebaut, wodurch sich Durchmesser und Tiefe flexibel anpassen lassen.
Das anfallende Regenwasser wird über Zulaufleitungen in den Schacht geführt und kann dort entweder gedrosselt abgeleitet, versickert oder zur weiteren Nutzung (z. B. Bewässerung) gesammelt werden.

Regenwasser-Sammelschacht monolithisch

Ein monolithischer Regenwasser-Sammelschacht ist ein einteilig, nach DIN 4034/2 gefertigter Schacht aus Beton, der zur Sammlung, Zwischenspeicherung und Ableitung von Regenwasser dient. Durch die fugenlose Bauweise ist er besonders dicht, stabil und langlebig.
Regenwasser wird über Zuläufe in den Schacht eingeleitet und kann dort gedrosselt abgeleitet, versickert oder zur weiteren Nutzung gespeichert werden. Im Vergleich zu Schächten aus einzelnen Schachtringen bietet die monolithische Ausführung eine höhere Betriebssicherheit, geringeren Montageaufwand und ein reduziertes Risiko von Undichtigkeiten.

Regenwassertank aus Kunststoff Carat

Der Regenwassertank Carat ist ein speziell für die unterirdische Regenwassernutzung entwickelter Erdtank, der sich durch hohe Stabilität, verschiedene Größen und Erweiterbarkeit auszeichnet.
Farbe schwarz, begehbar (Zuschlag für Pkw-befahrbar oder Kl. B 125 kN, Kl. D 400 kN)

Vorgeschaltete Filter vor Regenwasser-Sammelschacht

Ein vorgeschalteter Filter vor dem Sammelschacht ist entscheidend, um groben Schmutz wie Laub, Sand und Fette zurückzuhalten und so die Funktionsfähigkeit der Anlage zu sichern, die Versickerung vor Verschlammung zu schützen und die Wasserqualität für die Brauchwassernutzung zu verbessern.

Filter für Regenwasser-Sammelschacht zum Einbauen

Ein Filter für Regenwasser-Sammelschächte dient der zuverlässigen Vorreinigung von anfallendem Niederschlagswasser, bevor es in nachgeschaltete Anlagen gelangt. Er entfernt Laub, Sedimente und grobe Schmutzpartikel, schützt Pumpen sowie Technik vor Verschleiß und trägt zur Wasserqualität bei.

intus-Compact 200B

Die Kompaktanlage zur Regenwassernutzung intus-Compact 200B überzeugt durch eine durchdachte, platzsparende Bauweise und hochwertige Komponenten.
Sie besteht aus einem robusten Betonbehälter mit integriertem Gartenfilter/Basket 200 sowie einem beruhigten Zulauf für eine optimale Wasserqualität.
Der Nutzinhalt beträgt in der Regel 5.900 Liter bei einem Behälterdurchmesser von DN 2000 mm (innen).
Die Anlage ist montagefertig ausgelegt und eignet sich ideal für den Einbau direkt auf der Baustelle.

intus-Compact 200W

Diese Kompaktanlage zur Regenwassernutzung intus-Compact 200W überzeugt durch eine durchdachte, platzsparende Bauweise und hochwertige Komponenten.
Sie besteht aus einem robusten Betonbehälter mit integriertem Wirbelfeinfilter 200 sowie einem beruhigten Zulauf für eine optimale Wasserqualität.
Der Nutzinhalt beträgt in der Regel 5.900 Liter bei einem Behälterdurchmesser von DN 2000 mm (innen).
Die Anlage ist montagefertig ausgelegt und eignet sich ideal für den Einbau direkt auf der Baustelle.
Preise auf Anfage.
intus-Compact 500B

Die Kompaktanlage zur Regenwassernutzung intus-Compact 500B überzeugt durch eine durchdachte, platzsparende Bauweise und hochwertige Komponenten.
Sie besteht aus einem robusten Betonbehälter mit integriertem Gartenfilter/Basket 500 sowie einem beruhigten Zulauf für eine optimale Wasserqualität.
Der Nutzinhalt beträgt in der Regel 5.900 Liter bei einem Behälterdurchmesser von DN 2000 mm (innen).
Die Anlage ist montagefertig ausgelegt und eignet sich ideal für den Einbau direkt auf der Baustelle.

intus-Compact 500W

Die Kompaktanlage zur Regenwassernutzung intus-Compact 500W überzeugt durch eine durchdachte, platzsparende Bauweise und hochwertige Komponenten.
Sie besteht aus einem robusten Betonbehälter mit integriertem Wirbelfeinfilter 500 sowie einem beruhigten Zulauf für eine optimale Wasserqualität.
Der Nutzinhalt beträgt in der Regel 5.900 Liter bei einem Behälterdurchmesser von DN 2000 mm (innen).
Die Anlage ist montagefertig ausgelegt und eignet sich ideal für den Einbau direkt auf der Baustelle.

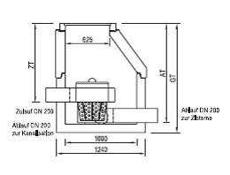
Gartenfilter XL im Schacht „FixL“

Der Gartenfilter XL im Filterschacht „FixL“ Typ B ist eine leistungsstarke Lösung zur Regenwasserfiltration nach DIN 1989 bei größeren Dachflächen von 390 bis 9.000 m².
Die Anlage ist als Filterschacht in langer oder kurzer Ausführung erhältlich und eignet sich ideal für den Einsatz in privaten und gewerblichen Regenwassernutzungsanlagen.
Der Filterschacht besteht aus einem Laub- und Sandfang DN 1000 / 950 mm mit integriertem Ein- und Auslauf, dem hochwertigen Gartenfilter XL sowie einem passenden Konus. Je nach Ausführung kommt entweder der Konus SH-F 1000 / 625 / 600 mm (Filterschacht lang) oder der Minikonus 1000 / 625 / 300 mm (Filterschacht kurz) zum Einsatz.

Regenwasser-Sammelanlagen monolithisch mit Filterplatte Typ A

Diese Zisterne mit Filterplatte Typ A eignet sich ideal für Dachflächen von 100m² bis 500m² und bietet eine effiziente Kombination aus mechanischer Filtration und Sedimentation zur zuverlässigen Aufbereitung von Regenwasser. Ein stark vergrößerter Schlammraum nach dem Einlauf sorgt für eine verbesserte Abscheidung von Schmutzpartikeln.
Ein beruhigter Zulauf unterstützt die Sedimentation, während das enthaltene Montageset eine einfache und sichere Installation ermöglicht.
Die Filterplatte Typ A (aus Edelstahl) mit integriertem Korbfilter besteht aus einem Halbkreis für DN 2000:
Hinter einem schrägen Spaltsieb ist eine Öffnung im Boden mit einem Stutzen für den Anschluss eines KG-Rohres mit beruhigtem Zulauf. Vor dem schrägen Spaltsieb ist ein Notüberlauf mit einem Stutzen zur Verrohrung unterhalb des Filters nach außen oder nach unten.

Filter im Schacht „FimS“

Soll überschüssiges Regenwasser direkt in ein Gewässer oder in das Grundwasser – beispielsweise über eine Rigole oder einen Sickerschacht – abgeleitet werden, ist eine Bewertung gemäß Merkblatt DWA-M 153 erforderlich.
Dem System „FimS“ ist dabei kein Durchgangswert zugeordnet.
Die Filtersäule im Schacht besteht aus einem robusten PE-Körper mit einer Seitenlänge von 500 mm sowie vertikal angeordneten Edelstahl-Spaltsieben mit einer Spaltweite von 0,6 mm.
Zu- und Ablauf erfolgen bauseits.
Die Ausführung ist wahlweise aus Schachtringen mit einbetoniertem Boden oder als monolithische Bauweise erhältlich.

